矢場町エリア サロン・スクール等 応相談★テナント [ 9.8坪 ]
おばちゃんのおすすめメモ
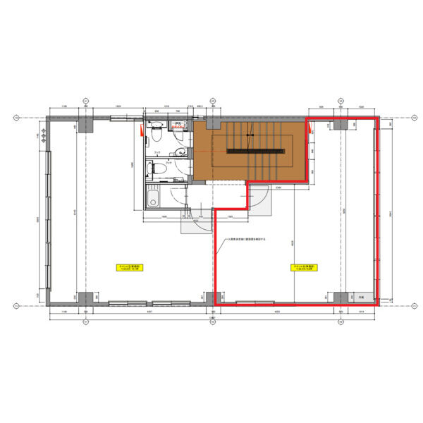
人気エリア 矢場町・大須 サロン・スクール等相談可能 テナント物件★ 電気 ★ 水道(公営) ★ 排水(公共下水) ★ 照明
MORE
おばちゃんのおせっかいメモ
おすすめポイントは後日UP☆
MORE
FUKUTA BLDG
2A(2階部分)
愛知県名古屋市中区大須3丁目4-12 Google
Map
12万9,360
2万1,560
1963年06月
名城線「矢場町」徒歩8分
名城線「上前津」徒歩8分
鶴舞線「大須観音」徒歩10分
敷金:なし 礼金:なし
保証金:4ヶ月
敷引・償却:55%(税込)
〇保証会社利用必須 (管理会社指定) 〇保険要加入
32.5m²/テナント [ 9.8坪 ]
鉄筋コンクリート造 地上3階 地下1階
退去予定日:2025年10月31日
○ 定期借家(5年間)
相談
○ 電気 ○ 水道(公営) ○ 排水(公共下水) ○ 照明
契約成立の場合、賃料の1ヶ月分(消費税はいただいておりません)
相当額の仲介手数料を申し受けます。
※税込み表示以外の物件で事業用途利用の際は、賃料・共益費に消費税が加算されます。
※案内図・間取図・方位がこの案内書と現況が異なる場合は現況を優先いたします。駐車場の空き状況についてはご連絡ください。
エステ・ネイル・リラクゼーション・アイラッシュなど サロン全般





この物件へのお問い合わせ