本陣駅 徒歩3分駅チカ物件☆戸建 サロン可
おばちゃんのおすすめメモ
おばちゃんのおせっかいメモ
大秋町一丁目戸建
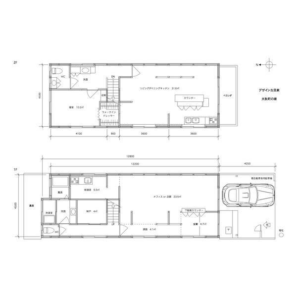
1F・2F
愛知県名古屋市中村区大秋町1丁目25-4 Google
Map
19万2,500
1984年02月
東山線「本陣」徒歩3分
保証金:3ヶ月
敷引・償却:55%(税込)
〇保証会社利用必須 (管理会社指定) 〇保険要加入
111m²/[ 戸建 ] 2LDK [ 33.57 ]
木造 地上2階
敷地内駐車場/敷地外専用駐車場(10m)/空き1台 軽自動車のみ可
空室
即日
更新事務手数料 更新時 44,000円(税込)
○ ペット相談(大型犬可能)○ 給湯器(都市ガス) ○ ガスコンロ設置可○ 風呂 ○ トイレ(水洗) ○ 洗面台(独立) ○ 暖房便座 ○ シャワートイレ ○ 追い焚き ○ バス・トイレ別 ○ 洗濯機置場(室内)○ エアコン(冷暖房)○ インターホン(カメラ付き)○ 電気 ○ ガス(都市ガス) ○ 水道(公営) ○ 排水(公共下水)
○ 初期費用 鍵交換費用 契約時 44,000円(税込) 〇家具(ダイニングテーブルセット)・照明は残地扱いとなります。不要な場合は引き取り可能です。
契約成立の場合、賃料の1ヶ月分(消費税はいただいておりません)
相当額の仲介手数料を申し受けます。
※税込み表示以外の物件で事業用途利用の際は、賃料・共益費に消費税が加算されます。
※案内図・間取図・方位がこの案内書と現況が異なる場合は現況を優先いたします。駐車場の空き状況についてはご連絡ください。
エステ・ネイル・リラクゼーション・アイラッシュなど サロン全般













この物件へのお問い合わせ