新築駅チカテナント物件!上小田井駅前 路面店★美容室可
おばちゃんのおすすめメモ
おばちゃんのおせっかいメモ
仮称)上小田井駅前テナント
1F南東(軽飲食相談可)(1階部分)
愛知県名古屋市西区貴生町192-2 Google
Map
11万5,710
3万6,540
2026年08月
鶴舞線「上小田井」徒歩3分
城北線「小田井」徒歩10分
犬山線「中小田井」徒歩15分
[ バス ]「山田巡回 上小田井駅」停 徒歩2分
礼金:1ヶ月
保証金:6ヶ月
敷引・償却:50%
〇保証会社利用必須 (管理会社指定) 〇保険要加入(管理会社指定)
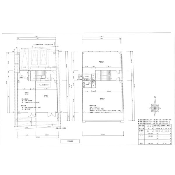
40.19m²/テナント [ 約12.18坪 ]
鉄骨造 地上2階
敷地内駐車場/空きあり/13,200円(税込) 普通車1台、コンパクトカーor軽四3台
新築 建設中
○ 普通借家(2年間)
引き渡し時期:2026年夏頃予定
0円/坪
○ 角部屋○ インターネット対応(回線工事必要・契約必要)○ スケルトン ○ 飲食店可
○ 2026年3月以降工事着工(引き渡し時期:2026年夏頃予定)建築関係上、引き渡しがずれ込む可能性があり予めご理解・ご了承ください。○ 金額表示から別途消費税かかります。
契約成立の場合、賃料の1ヶ月分(消費税はいただいておりません)
相当額の仲介手数料を申し受けます。
※税込み表示以外の物件で事業用途利用の際は、賃料・共益費に消費税が加算されます。
※案内図・間取図・方位がこの案内書と現況が異なる場合は現況を優先いたします。駐車場の空き状況についてはご連絡ください。
エステ・ネイル・リラクゼーション・アイラッシュなど サロン全般






この物件へのお問い合わせ