人気エリア 覚王山駅から徒歩3分 plusM KAKUOZANⅡ サロン可☆メゾネット [ LDK11.2 × 洋室11.6 ]
おばちゃんのおすすめメモ
★ウォークインクローゼット ★シューズボックス★ネット使用料不要 ★Wi-Fi★オートロック ★宅配BOX ★防犯カメラ ★インターホン(カメラ付き)★専用ごみ置場 ★電気 ★ガス(都市ガス) ★水道(公営) ★排水(公共下水) ★バルコニー/ベランダ ★照明 ★網戸
おばちゃんのおせっかいメモ
plusM KAKUOZANⅡ
204(2階部分)
愛知県名古屋市千種区堀割町2丁目55-4 Google
Map
15万5,000
5500
2022年11月
東山線「覚王山」徒歩3分
東山線「池下」徒歩7分
敷金:なし 礼金:なし
保証金:なし
敷引・償却:なし
〇保証会社利用必須 (管理会社指定) 〇保険要加入
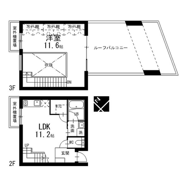
52.5m²/ LDK11.2 × 洋室11.6
鉄筋コンクリート造 地上3階
空室
即入
更新事務手数料:税込20,000円/2年
○ 給湯器(都市ガス) ○ IHクッキングヒーター(2口) ○ システムキッチン○ 風呂(ユニットバス) ○ トイレ(水洗) ○ 洗面台(独立) ○ 浴室乾燥機 ○ シャワートイレ ○ 追い焚き ○ バス・トイレ別 ○ 洗濯機置場(室内) ○ 衣類乾燥機○ エアコン(冷暖房)
○ ウォークインクローゼット ○ シューズボックス○ ネット使用料不要 ○ Wi-Fi○ オートロック ○ 宅配BOX ○ 防犯カメラ ○ インターホン(カメラ付き)○ 専用ごみ置場 ○ 電気 ○ ガス(都市ガス) ○ 水道(公営) ○ 排水(公共下水) ○ バルコニー/ベランダ ○ 照明 ○ 網戸
○ その他 更新手数料 20,000円(税込) クルーズサポート料金 990円(税込) カギ交換代 27,500円(税込) 補修費分担金 88,000円
契約成立の場合、賃料の1ヶ月分(消費税はいただいておりません)
相当額の仲介手数料を申し受けます。
※税込み表示以外の物件で事業用途利用の際は、賃料・共益費に消費税が加算されます。
※案内図・間取図・方位がこの案内書と現況が異なる場合は現況を優先いたします。駐車場の空き状況についてはご連絡ください。
エステ・ネイル・リラクゼーション・アイラッシュなど サロン全般










この物件へのお問い合わせ