新栄町駅徒歩5分 美容室可テナント 現在カラオケ店舗 ★電気 ★ガス(都市ガス) ★水道(公営) ★排水(公共下水)
新栄町駅徒歩5分 美容室可☆テナント[32.06坪]
おばちゃんのおすすめメモ
MORE
おばちゃんのおせっかいメモ
おすすめポイントは後日UP☆
MORE
東桜ゴールドビル
401(4階部分)
愛知県名古屋市中区東桜2丁目18-30 Google
Map
16万5,000
2万2,000
1991年01月
東山線「新栄町」徒歩5分
敷金:なし 礼金:なし
保証金:600,000円
敷引・償却:330,000円(税込)
〇保険要加入
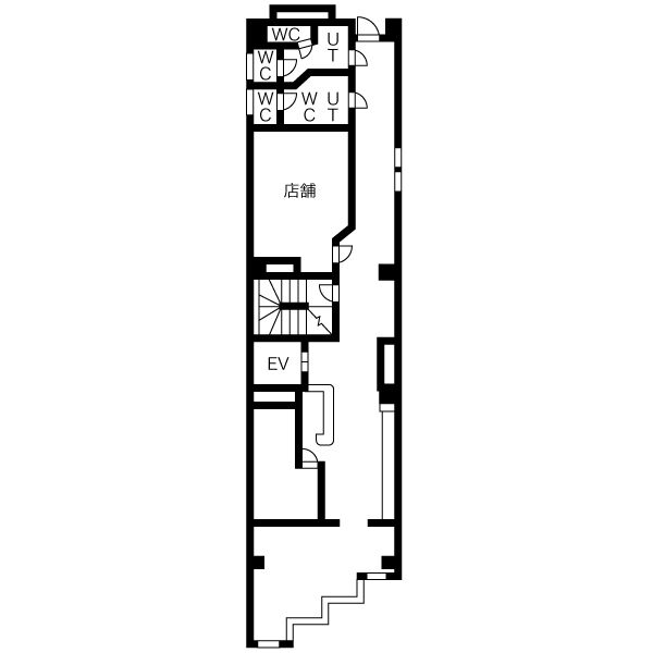
106m²/テナント
鉄骨造 地上10階
空室
○ 普通借家(2年間)
相談
なし
○ 電気 ○ ガス(都市ガス) ○ 水道(公営) ○ 排水(公共下水)
○ゴミ処理代 月額 9,240円(税込)
契約成立の場合、賃料の1ヶ月分(消費税はいただいておりません)
相当額の仲介手数料を申し受けます。
※税込み表示以外の物件で事業用途利用の際は、賃料・共益費に消費税が加算されます。
※案内図・間取図・方位がこの案内書と現況が異なる場合は現況を優先いたします。駐車場の空き状況についてはご連絡ください。
美容室










この物件へのお問い合わせ