新栄駅も高岳駅も徒歩5分以内!トイレもキッチンも独立型のサロン営業しやすいテナント仕様のお部屋
おばちゃんのおすすめメモ
◆公園あり!◆◇飲食店多数
☆シャワートイレ
☆バス・トイレ別
☆洗濯機置場(室内)
☆ エアコン☆ シューズボックス
☆ オートロック ☆ 宅配BOX ☆ インターホン
おばちゃんのおせっかいメモ
昨年オートロックを交換したばかりなのでセキュリティー面も安心です
Hearty東桜
303(3階部分)
愛知県名古屋市東区東桜2丁目16-41 Google
Map
13万2,000
6600
1989年03月
東山線「新栄町」徒歩3分
桜通線「高岳」徒歩5分
東山線「栄」徒歩10分
敷金:なし 礼金:2ヶ月
保証金:なし
敷引・償却:なし
保証会社利用必須 全保連 保険要加入 全保連火災保険付きプラン
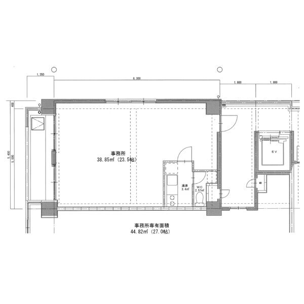
44.82m²/テナント
鉄筋コンクリート造 地上8階
空室
即入
更新事務手数料 更新時 22,000円(税込)
○ シャワートイレ ○ バス・トイレ別 ○ 洗濯機置場(室内)○ エアコン○ シューズボックス○ インターネット対応 ○ ネット使用料不要 ○ ネット専用回線○ オートロック ○ 宅配BOX ○ インターホン○ エレベーター(1基)
美容系・サロンの場合水道料変更有 オートロック交換【スマートロック(ブロロック)】しました ○ 初期費用 カギ交換費用 契約時 16,500円(税込)
契約成立の場合、賃料の1ヶ月分(消費税はいただいておりません)
相当額の仲介手数料を申し受けます。
※税込み表示以外の物件で事業用途利用の際は、賃料・共益費に消費税が加算されます。
※案内図・間取図・方位がこの案内書と現況が異なる場合は現況を優先いたします。駐車場の空き状況についてはご連絡ください。
エステサロン・ネイルサロン・リラクゼーション・アイラッシュ
サロン全般




















この物件へのお問い合わせ